Обяви 0 За нас Контакти
Продава МНОГОСТАЕН
град Бургас, Сарафово
400 000 €
782 332.00 лв.

(855 €, 1 672.23 лв./m2)
Цената е с включено ДДС
Публикувана в 12:03 на 7 април, 2026 год.
Обявата е посетена 287 пъти.
Площ:
468 m2
Етаж:
4-ти от 4
Строителство:
Тухла, Въведен в експлоатация 2008 г.

Описание на имота:


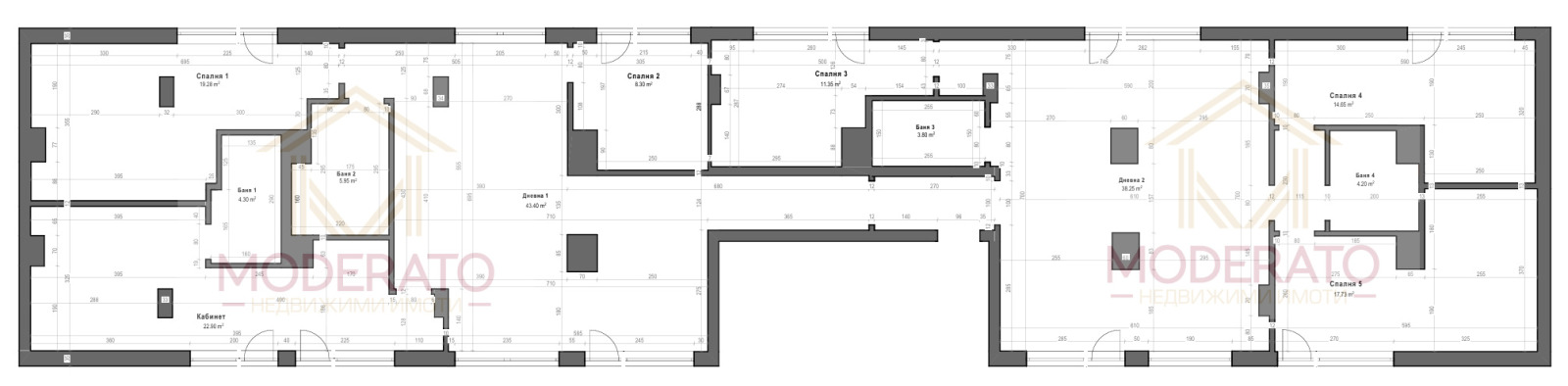
Предлагаме за продажба изключителен пентхаус с обща площ 468 кв.м., разположен в кв. Сарафово, гр. Бургас - един от най-тихите и перспективни райони на града близо до морето.

Имотът е разположен на последен етаж в жилищна сграда с асансьор. Пентхаусът представлява обединение на тристаен и четиристаен апартамент, изцяло преустроен и проектиран по професионален дизайнерски проект, включен в цената.

Разпределение:
Просторна дневна зона, 5 спални, всяка със самостоятелна баня към нея, дрешник, склад, втора дневна стая, антре и огромна тераса, на която има възможност за лятна кухня, джакузи и допълнителни зони за отдих.

Имотът е с инсталирани соларни панели и 2 соларни бойлера по 200 л, които осигуряват близо 90% енергийна автономност.

Подово отопление в баните, коридора и кухнята. Вградено фоново озвучаване във всички помещения, включително баните. Сменени дограми, изцяло подменени ел. и ВиК инсталации, допълнителна изолация на стени, тавани и покрив.

Терасите са хидроизолирана с изведени ток и вода и са част от имота, а не общи части.

Поддръжката на сградата към момента е 100 / година, като предстои цялостно обновяване на комплекса - рецепция, басейн, общи части и паркоместа.

Имотът може да бъде закупен с кредит срещу ипотека на друг имот; с фирмен кредит и чрез изкупуване на фирмата-собственик (значително намаляване на разходите)

Цена: 400 000
Работим по тази оферта, както и по всички останали имоти в нашето портфолио с колеги от други агенции.
+359888773307

pchichanova@moderatoimoti.com

MODERATO недвижими имоти
Особености
Тухла
Асансьор
Видео наблюдение
Контрол на достъпа
Охрана
В затворен комплекс
За ремонт
За контакт:
0888773307
Агенция:
МОДЕРАТО
0888302341
МОДЕРАТО logo
Медал за прослужено време
В imot.bg от 2018 г.
moderato.imot.bg
Адрес:
област Бургас, гр. Бургас, ул. Васил Левски 16, офис 109
http://www.moderatoimoti.com
ИЗПРАТИ ЗАПИТВАНЕ
ИЗПРАТИ ЗАПИТВАНЕТО

Продава МНОГОСТАЕН
град Бургас, Сарафово
Обява: 1e177555260425790

400 000 €
782 332.00 лв.
(855 €, 1 672.23 лв./m2)

Цената е с включено ДДС
ЗАПАЗИ ОБЯВАТА

Местоположение: град Бургас, Сарафово

Допълнителни данни за имотите в района и сравнение с други райони

Покажи

Период

и 5 месеца

* Средните цени са определени чрез медианна стойност